Familien und Pferdeliebhaber aufgepasst!
Das Wohngebäude wurde 1908 neu errichtet und im Jahr 2019 - 2021 umfangreich saniert. Das Haus besteht im Erdgeschoss (122,80 m²) aus 5 Zimmer mit einem Duschbad und einem Wannenbad. Die Elektrik im Keller und Erdgeschoss wurden 2020 vollständig erneuert. Die Heizungsanlage, die Wasser- und Abwasserleitungen wurden in 2020 vom Erdgeschoss bis in das Obergeschoss komplett erneuert. Im Erdgeschoss ist die Badsanierung, die Montage der Fußleisten des Laminats, sowie die Isolierung und Verkleidung der Rollläden teilweise noch offen, kann jedoch mit geringem Aufwand fertiggestellt werden. Der Schöne sanierte Kacheloffen im Erdgeschoss lädt von Herbst bis Winter zu gemütlichen wärmenden Abenden ein.
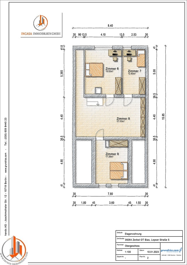
Im Obergeschoss (87,37 m²) befinden sich 4 weitere Räume und zusätzliche Abstellfläche. Hier muss lediglich der Elektroausbau sowie evtl. die Raumaufteilung, Boden- sowie der Wandbelag erneuert werden. Im gesamten Objekt wurden die Fenster durch moderne 3 Fachverglasung ersetzt. Im Dachgeschoss befindet sich eine großzügige Ausbaureserve. Der Blitzableiter befindet sich auf dem Dach und ist fertig montiert, jedoch muss dieser noch geerdet werden.
Die Restarbeiten können übrigens ab 0,95 - 1,75 % Sollzins über die Investitionsbank Sachsen Anhalt finanziert werden.
Auf dem neuen Dach befindet sich eine Solarthermie (Warmwasserversorgung) sowie eine gemietete PV- Anlage zur Eigenversorgung und Einspeisung (ohne Speicher) mit einer Leistung von maximal 5,2 KW/h. Die monatliche Miete beträgt 91,63 EUR. Die Anlage kann jederzeit käuflich erworben werden. Derzeit beträgt der Kaufpreis ca. 12.900 EUR netto. Dieser verringert sich pro Jahr um 114,96 EUR netto. Die monatliche Einspeisevergütung nach Selbstnutzung betrug ca. 20 EUR.
Sanierung 2020 im Wert von 179.000 EUR:
+ Erneuerung der Fenster für 25.000 EUR
+ Erneuerung der Elektroanlage für 19.000 EUR
+ Sanierung des Daches im Haus 49.000 EUR
+ Erneuerung der Heizung mit Solarthermie für 40.000 EUR
+ Neuer Gasanschluss im Haus
+ Erneuerung Wasserleitungen im Haus
+ Bodenbelege und Maler- Trockenbauarbeiten für 15.000 EUR
+ Verandadach erneuert ca. 2.000 EUR
+ Torhausdach erneuert ca. 8.000 EUR
+ Neues Tor Pferdestall ca. 7.000 EUR
+ Elektroanlage Stallungen herrichten ca. 14.000 EUR
In den Stallungen rechts und quer wurden die elektrischen Anlagen ebenfalls 2020 erneuert (LED) und der Auslauf teilweise mit LED-Strahler ausgestattet. Der Pferdestall ist teilweise Video überwacht.
Die Stallungen eigen sich optimal für Pferdeliebhaber
Die Scheune ist zu einem Laufstall umfunktioniert worden. Zwei voneinander abtrennbare Bereiche sind mit Waldboden bzw. Kompostboden eingestreut. So finden hier je nach Größe bis zu 6 Pferde entspannt Platz. Die Einstreu ist pflegeleicht, langlebig und sorgt für eine gute Stallluft. Die Scheune kann nach hinten geöffnet werden. Dort finden die Pferde einen Trail auf einer Fläche von ca. 4000 qm vor. Zwei Koppeln sind abgetrennt und können im Sommer stundenweise zugänglich gemacht werden. Hier können die Pferde sofort einziehen und Tag und Nacht frei zwischen Laufstall und Trail wählen. Es ist genug Platz für eine Rundballenheuraufe, um auch eine ad libitum Fütterung zu gewährleisten. Auf der hinteren Koppel bietet es sich an, einen Reitplatz anzulegen.
Hinweis!
Nachdem Sie uns eine Anfrage gestellt und Sie die Checkboxen bestätigt haben, erhalten Sie in einer gesonderten Mail das umfangreiche Exposee inklusive aller Objektunterlagen (Grundbuch, Wohnflächenberechnung, etc.) übersandt.





































































































































